Vi sidder klar til at hjælpe dig
Ønsker du at vide mere om KobberEngen? Eller ønsker du en privat fremvisning, er du naturligvis altid velkommen til at kontakte os.
Kontakt Pia fra Taurus Ejendomsforvaltning.
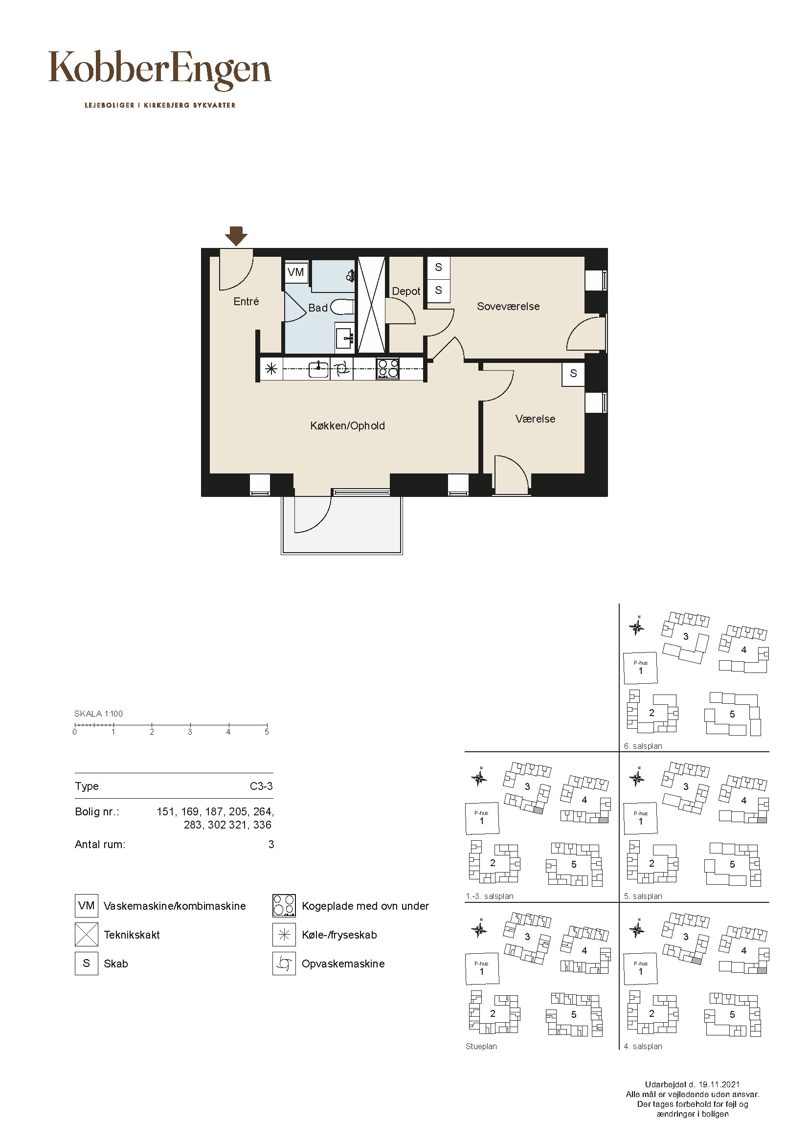
Et lyst og rummeligt hjem med en planløsning, der giver mening. Det åbne opholdsrum er boligens samlingspunkt med plads til både madlavning og afslapning. Soveværelset har skabe, det ekstra værelse giver muligheder, og altanen er prikken over i’et – din egen lille oase i byen.
Book en personlig fremvisning eller stil dine spørgsmål til os via
Ønsker du at vide mere om KobberEngen? Eller ønsker du en privat fremvisning, er du naturligvis altid velkommen til at kontakte os.
Kontakt Pia fra Taurus Ejendomsforvaltning.