Vi sidder klar til at hjælpe dig
Ønsker du at vide mere om KobberEngen? Eller ønsker du en privat fremvisning, er du naturligvis altid velkommen til at kontakte os.
Kontakt Pia fra Taurus Ejendomsforvaltning.
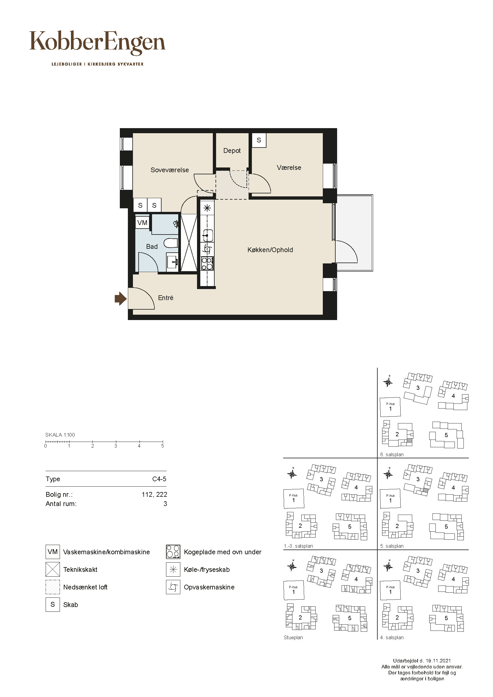
Denne bolig kombinerer rummelighed med moderne komfort. De flotte gulve i eg, de store vinduer og det stilrene køkken skaber et harmonisk helhedsindtryk. Badeværelset har sandfarvede klinker og vaskesøjle, og altanen fungerer som et naturligt ekstra opholdsrum. Gode værelser med skabsplads giver fleksibilitet i indretningen.
Book en personlig fremvisning eller stil dine spørgsmål til os via
Ønsker du at vide mere om KobberEngen? Eller ønsker du en privat fremvisning, er du naturligvis altid velkommen til at kontakte os.
Kontakt Pia fra Taurus Ejendomsforvaltning.