Vi sidder klar til at hjælpe dig
Ønsker du at vide mere om KobberEngen? Eller ønsker du en privat fremvisning, er du naturligvis altid velkommen til at kontakte os.
Kontakt Pia fra Taurus Ejendomsforvaltning.
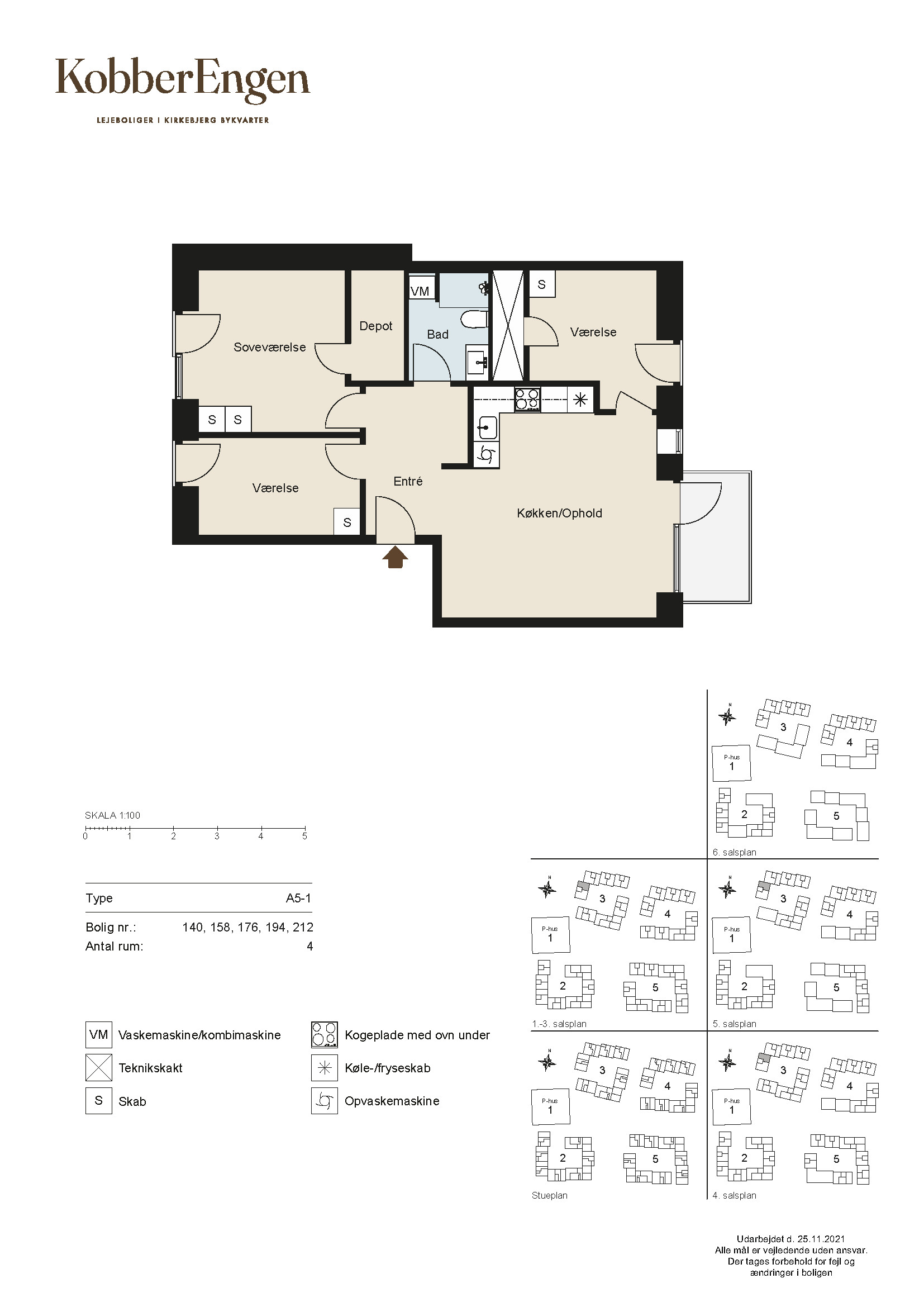
Her får I en bolig, hvor der er plads til grin, leg og hverdagsliv. Det store køkkenalrum bliver hurtigt hjemmets hjerte – et sted, hvor alle kan være med, mens aftensmaden simrer. De tre værelser kan nemt tilpasses familiens behov, og den rummelige altan inviterer til morgenkaffe og aftensmad under åben himmel.
Book en personlig fremvisning eller stil dine spørgsmål til os via
Ønsker du at vide mere om KobberEngen? Eller ønsker du en privat fremvisning, er du naturligvis altid velkommen til at kontakte os.
Kontakt Pia fra Taurus Ejendomsforvaltning.